Description
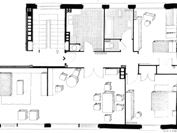
Dans un parc de 4,4 Hectares , proche de la gare pour Montparnasse et Versailles (15 minutes de train) ainsi que du centre ville (commerces, école et collège à sections internationales – Au deuxième étage d’une jolie résidence en pierres de taille proche du centre ville et de la gare pour Montparnasse, très bel appartement de 4 pièces principales avec belle hauteur sous plafond, composé d’une entrée, un double séjour parqueté de plus de 42 m² exposé au sud/ouest avec très belle vue dégagée (3ème chambre possible), cuisine indépendante, couloir avec rangements, deux grandes chambres parquetées et avec placards, une salle de bains carrelée, wc séparés. Une cave en sous-sol, parking résidentiel (possibilité d’acquérir un garage en sus). Travaux de rafraîchissent à prévoir. Lumineux et calme, proche toute commodités. Appartement coup de cœur.
Copropriété de 58 Lots dont 32 à usage d’habitation + ASL. Pas de procédure en cours.
Les informations sur les risques auxquels ce bien est exposé sont disponibles sur le site Géorisques : www.georisques.gouv.fr
Montant annuel de la quote-part du budget provisionnel des charges courantes (copro + asl): 7596 € environ soit 633 €/mois environ (chauffage, eau chaude et froide, gardiens, parc…).
DPE: E 270 KwhEP/m2/an – GES: E 59 Kg Co2/m2/an, estimation des coûts annuels d’énergie du logement entre 2010 € et 2780 € (prix moyen des énergies indexés sur les années 2021, 2022, 2023 (abonnement compris)).
Prix: 465 000 Euros frais d’agence inclus à charge de l’acquéreur (forfait d’honoraires de 15 000 € t.t.c.)
Pour toute visite ou information, contactez votre agence LM Immobilier Nicolas Le Marcis
Details
Addresse
-
Ville: Sèvres
Classe énergétique
-
Classe énergétique: E
-
Valeur: 270 KwhEP/m2/an
-
Emission de gaz a effet de serre: 59 Kg Co2/m2/an
-
Valeur: E
- A+
- A
- B
- C
- D
- 270 KwhEP/m2/an | Classe énérgetique EE
- F
- G
- H
Contact Information
Annonces similaires
Meudon Musée Rodin – 5 Pièces
- LOUE PAR L'AGENCE
Sèvres Brancas – 4 Pièces
- 449 000 €/F.A.I.
Chaville Rive Droite – 5 Pièces 106 m²
- 449 000 €/F.A.I.
Chaville Rive Droite – 2 Pièces balcons
- 350 000 €/F.A.I.
- Nicolas Le Marcis









